Description
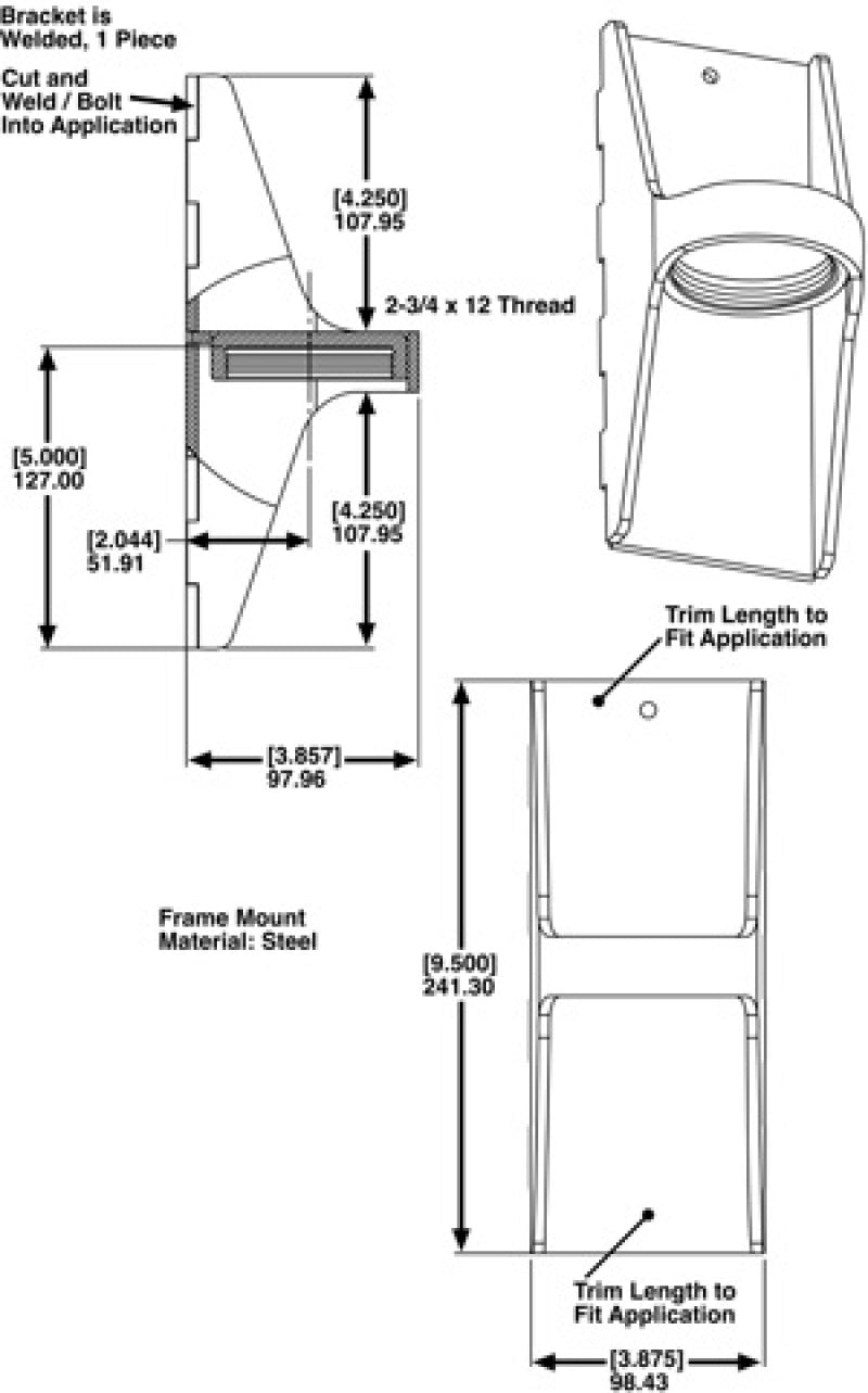
This universal mount provides a versatile weld or bolt on option to mount your JounceShock in a fixed position (trim to fit) California Residents WARNING
Installation Instructions
Installation Instructions


